










offener einstufiger Projektwettbewerb
in Zusammenarbeit mit Sébastien Ressnig
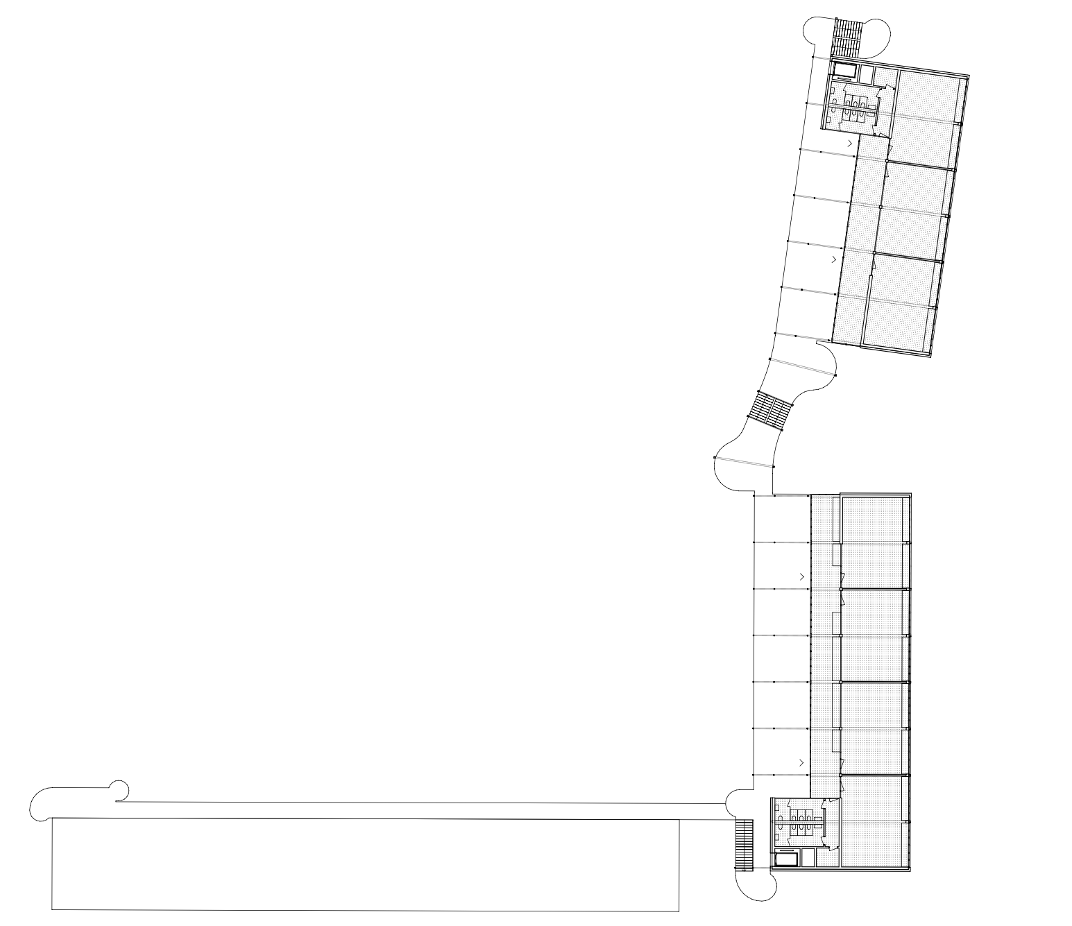
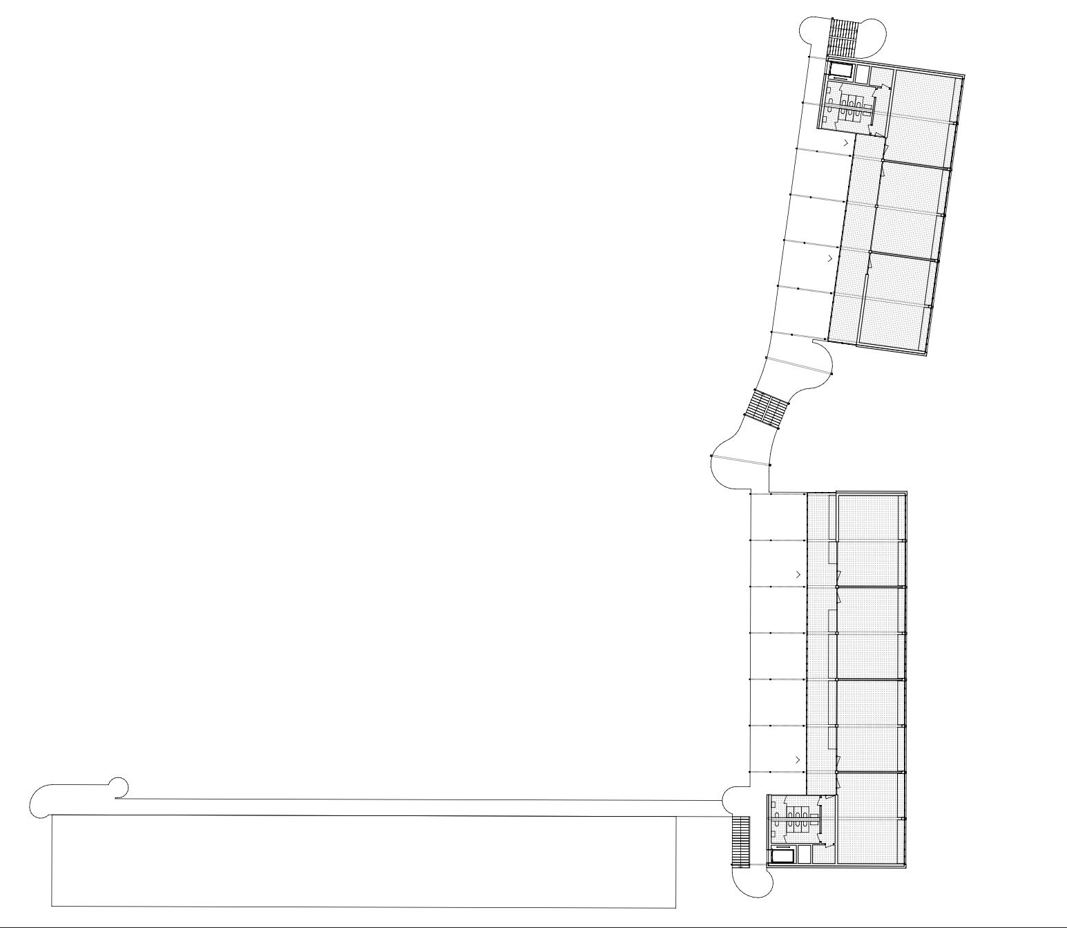
Der Perimeter befindet sich mitten in der Stadt Brig-Glis, wo früher eine landwirtschaftlich genutzte Zwischenzone zwischen den beiden Dörfern Brig und Glis war, wohnen heute so viele Menschen wie sonst nirgends in der Stadt. Gleichzeitig gibt es noch viele unbebaute Grundstücke in Zonen, die bis zu fünf Vollgeschosse erlauben, das Quartier hat ein dementsprechend grosses Verdichtungspotential. Inmitten dieses Viertels befindet sich die Sportanlage Glismatta mit Fussballplatz, Trainingsplatz und Allwetteranlage, die von Kindern, Jugendlichen und Quartierbewohner:innen intensiv genutzt wird, die Fussverbindung über den Kirchweg entlang der Sportfelder zur Gliserallee ist zu allen Tageszeiten stark frequentiert. Die Qualität einer Freifläche dieser Dimension inmitten eines dicht besiedelten Viertels wollen wir – nicht zuletzt im Hinblick auf eine anhaltende Verdichtung des Quartiers – mit unserem Entwurf schützen. Die von uns vorgeschlagenen Bauten haben einen diesen Freiraum begleitenden Charakter: Sie folgen den unterschiedlich genutzten Freiräumen und bieten teils witterungsgeschützte Wege, die Treppentürme – die jeweils zwischen den Häusern und an Kreuzungspunkten verschiedener Bewegungs-richtungen liegen – verbinden die Wege der Umgebung mit den Erschliessungsmomenten der Häuser, die Schule wird so mit dem Quartier verwoben, es entsteht eine Schule, die sich über ihre Aussenräume mit dem Quartier verbindet.
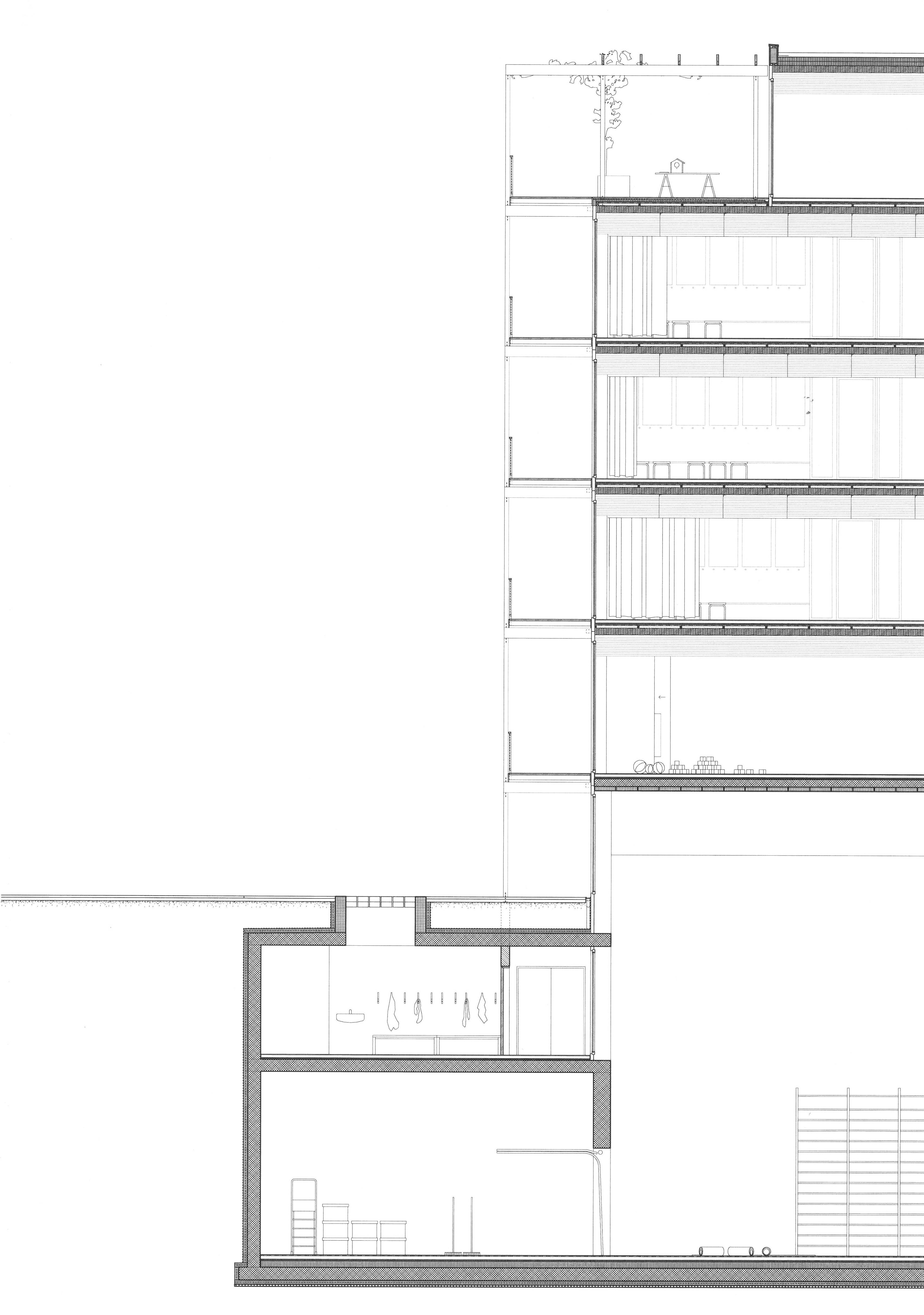
Die Setzung der beiden Häuser berücksichtigt die sonnenarmen Wintermonate: die Weitsicht ins Tal, die Ausrichtung nach Westen und die Durchsichten zwischen den Häusern auf das umgebende Panorama kompensieren die Zeit ohne direkte Sonneneinstrahlung. Die Räume der Primarschule, des Kindergartens und die Dopppelturnhalle finden in zwei neuen Häusern Platz, die bestehende Kindertagesstätte wird aufgestockt und bietet Raum für die Tagesschule. Erschlossen werden die Gebäude über eine feingliedrige Stahlstruktur, die sich wie ein Netz vor die Fassaden des Bestands und der Neubauten stellt und eine Laube, vier Treppentürme und Balkone aufnimmt, sie übernimmt eine verbindende Funktion zwischen Bestand und Neubauten und zwischen den unterschiedlichen Nutzungen. Die Laube dehnt sich jeweils bei den Treppentürmen aus und bildet unterschiedlich grosse, organisch geformte Balkone. Sie bieten Platz, um sich kurz aus der Masse der sich bewegenden Schüler:innen zu lösen, innezuhalten oder sich in ein Gespräch mit einer entgegenkommenden Person zu vertiefen. Im Dachgeschoss erweitert sich die Laube und wird zur grosszügigen, nach Westen orientierten Dachterrasse, die Stahlstruktur wird dort zur Tragstruktur einer Holzpergola.
Die Kindergärten befinden sich im Erdgeschoss und funktionieren als autarke Einheiten, sie werden über kleine Treppen erschlossen, alle Kindergärten sind über die Laube auch hindernisfrei zugänglich. Die Raumsequenz bestehend aus Garderobe, einer Nische mit Waschbecken und Zugang zu den Toiletten, einem grosszügigen Hauptraum, einem Durchgangsraum mit Zugang zum Materialraum endet in einem kleineren Gruppenraum.Die Haupträume sind mehrheitlich nach Westen orientiert und lassen sich grosszügig zur Laube hin öffnen, sie sind über raumhohe Schiebetüren miteinander verbunden.
In den Obergeschossen befinden sich die Räume der Primarschule, gruppiert in Cluster von drei bzw. vier Klassenzimmern. Die beiden Neubauten sind aufgrund der bestehenden Topografie um ein halbes Geschoss zueinander versetzt, alle Cluster sind über einige Treppenstufen mit den benachbarten Clustern verbunden, sie können so auch flexibel zusammen genutzt werden. Alle Klassenräume sind nach Osten orientiert und über die als Gruppenraum, Garderobe und Lernzone genutzte Halle erschlossen. Die Halle wird über Garderoben und Gruppenräume zoniert und ist mittels Vorhängen weiter unterteilbar, sie lässt sich grosszügig zur Laube öffnen und hat so einen wintergartenähnlichen Charakter. Angrenzend an die Halle des südlichen Hauses schliessen jeweils die Räume für den DFF- und PSH-Unterricht an.
Im Dachgeschoss befinden sich die Räume, die von allen Stufen für den Unterricht von technischem und textilem Gestalten genutzt werden, erschlossen werden sie über einen Gang, in dem sich Materialschränke und Garderoben befinden, die Fenster zur Dachterrasse lassen sich grosszügig öffnen, in der warmen Jahreszeit kann auch unter der mit Hopfen bewachsenen Pergola handwerklich gearbeitet werden.
Die bestehende Kindertagesstätte wird über die Laubenschicht in das Ensemble eingebunden. Vier Fensterflügel werden durch Fenstertüren ersetzt, die Gruppenräume können so in der warmen Jahreszeit in den Aussenraum erweitert werden. In der Aufstockung finden die Räume der Tagesschule Platz, ein als Garderobe genutzter Korridor vermittelt zwischen Haupträumen und Laube, er weitet sich vor den Toiletten zu einer Nische mit zwei Waschbecken aus, die nach den Mahlzeiten zum Zähneputzen genutzt werden kann.
Im zweiten und dritten Untergeschoss des südlichen Gebäudes finden die Räume der Doppelturnhalle Platz, die Halle selbst reicht dabei über drei Geschosse und wird über die Fassade im ersten Untergeschoss belichtet, im dritten Untergeschoss befinden sich der Geräteraum, die Lehrer:innen-Garderobe und ein Technikraum, im zweiten die Garderoben der Schüler:innen, die von oben belichtet werden, die Verglasung entlang des Korridors im zweiten Untergeschoss stellt einen Blickbezug zwischen Garderoben und Halle her.
Der Ausdruck der Westfassade der beiden neuen Häuser wird bestimmt durch eine feine Haut aus Fenstern und Rahmenverbreiterungen in Aluminium und die vorgelagerte Laube aus pulverbeschichteten Stahlstützen, -trägern, -streben und -wangen. Die Ostfassade ist geprägt von bandartigen Fenstern mit Brüstungen, die Stösse einer horizontal gerichteten Stülpschalung aus vorvergrauter Lärche werden durch vertikale Holzlatten geschützt, vor den Stützen reichen diese jeweils bis in den Sturzbereich und brechen damit die Horizontalität. Oberhalb der Erdgeschoss-Fenster werden die vertikalen Latten zur Unterkonstruktion des Vordachs, das die Zugänge zu den Kindergärten vor Witterung schützt. An den Stirnfassaden ändert sich die Richtung der Schalung: die Schalungsbretter stehen nun vertikal, die horizontalen Stösse werden durch leicht geneigte, horizontale Latten geschützt, im Zusammenspiel mit der Stülpschalung entsteht eine Fassade gestrickten Charakters. Der Ausdruck der Tagesschule lehnt sich stark an die bestehende Fassade der Kindertagesstätte an: eine Vertikalschalung aus vorvergrauten Lärchenbrettern vermittelt zwischen Bestand und Neubau.